Skip to content

Gutes
Gewerbe

  • Geschosse: 1
  • Gewerbefläche: 185,17
  • Kaufpreis: € 1.337.040,00
Neubau EG

A01

  • Geschosse: 1
  • Gewerbefläche: 95,58 m²
  • Kaufpreis: € 689.184,00
Neubau EG

C01

  • Geschosse: 1
  • Gewerbefläche: 139,97 m²
  • Kaufpreis: € 999.432,00

mit D01 OG kombinierbar

Bestand EG kombinierbar mit D01 OG

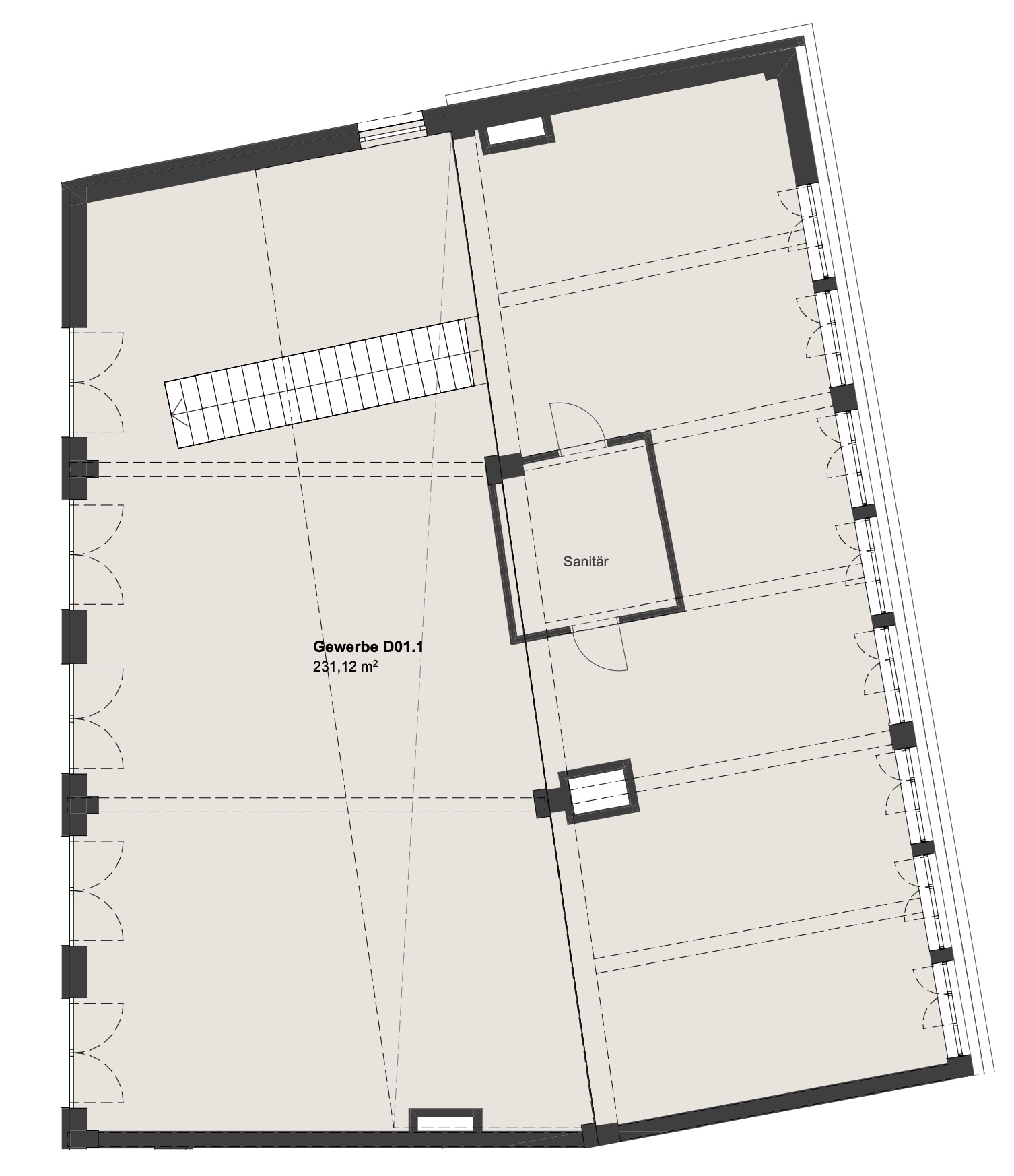
D01 EG

  • Geschosse: 1
  • Gewerbefläche: 231,12 m²
  • Kaufpreis: € 1.489.446,00

mit D01 EG kombinierbar

Bestand OG kombinierbar mit D01 EG

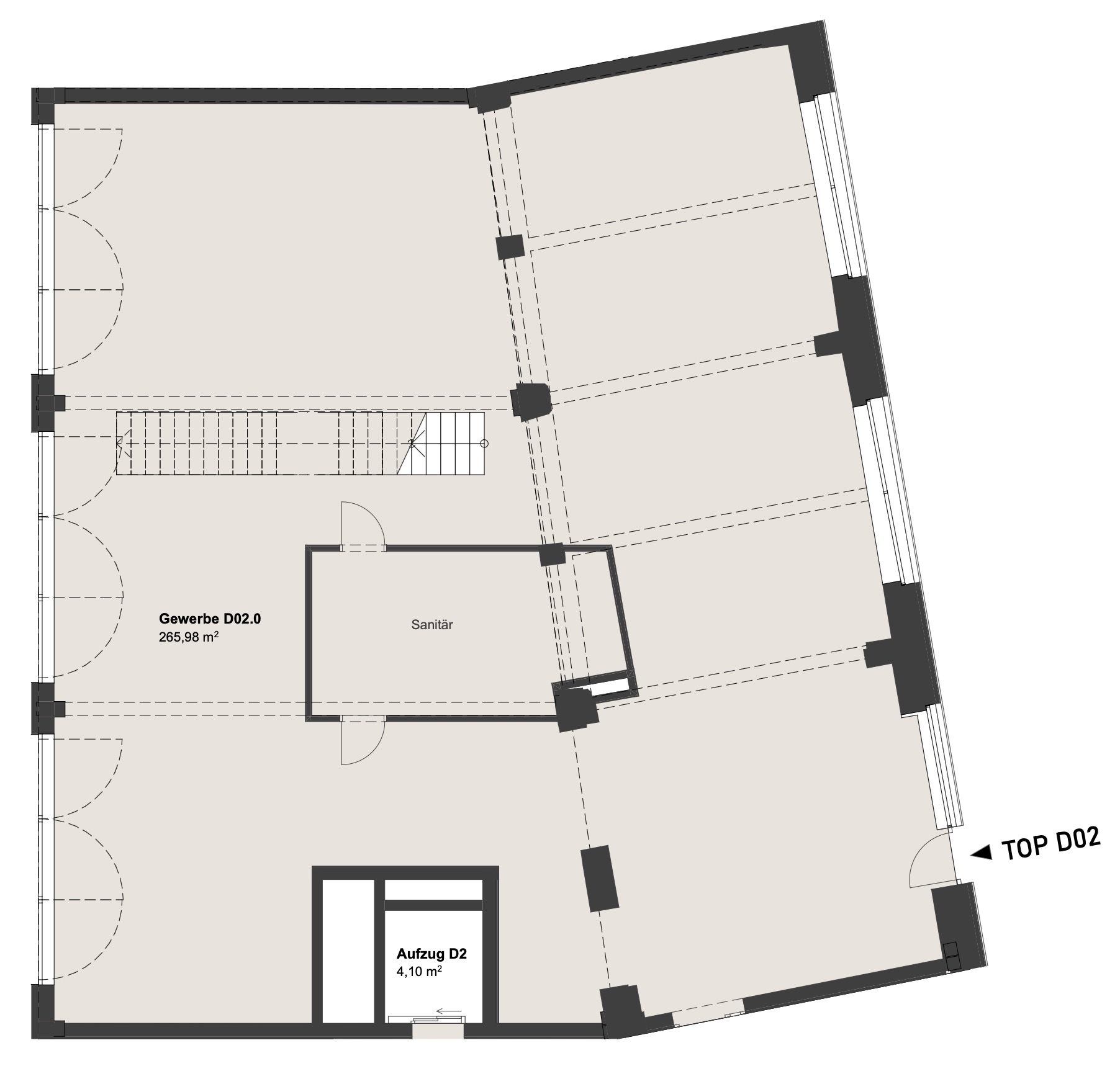
D01 OG

  • Geschosse: 1
  • Gewerbefläche: 265,98 m²
  • Kaufpreis: € 1.894.032,00
Bestand EG kombinierbar mit D02 OG

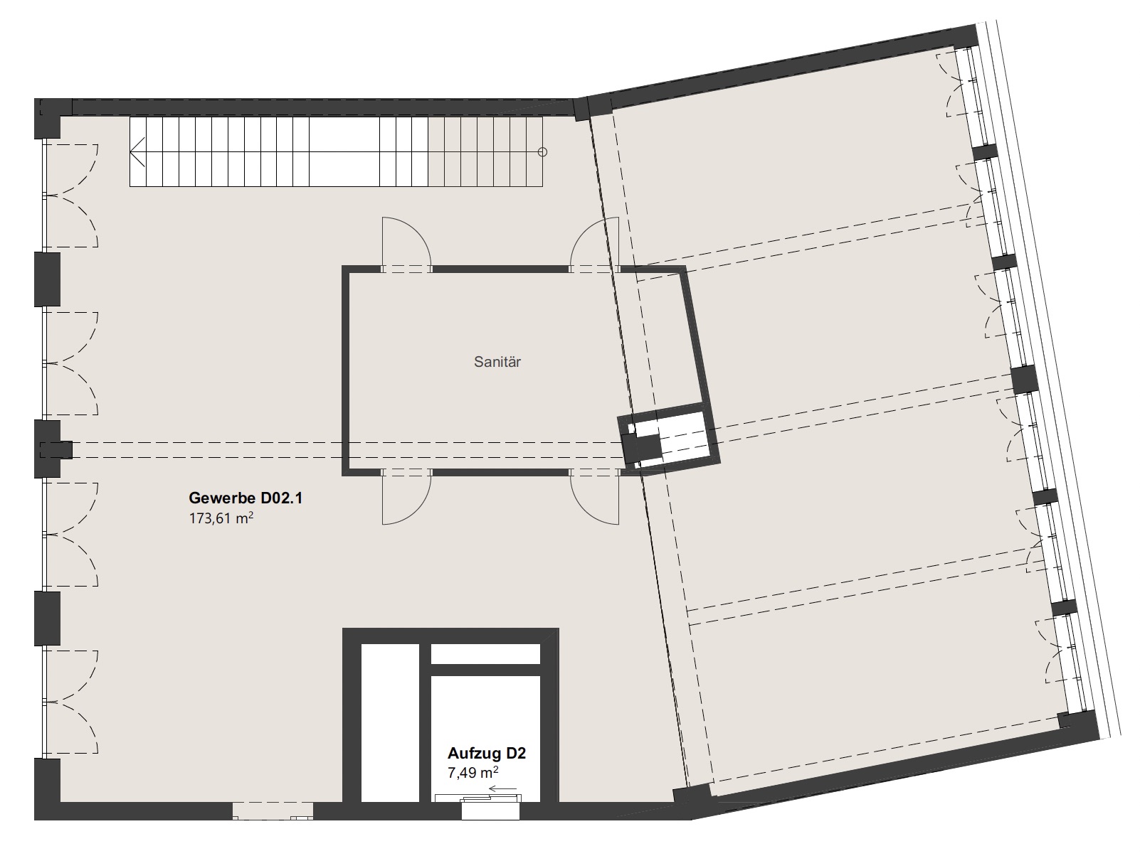
D02 EG

  • Geschosse: 1
  • Gewerbefläche: 173,61m²
  • Kaufpreis: € 1.138.536,00
Bestand 1. OG kombinierbar mit DG02 OG2

D02 OG

  • Geschosse: 1
  • Gewerbefläche: 300,14 m²
  • Kaufpreis: € 2.159.208,00
Bestand EG

D04

  • Geschosse: 1
  • Gewerbefläche: 965,07 m²
  • Kaufpreis: € 6.028.092,00
Bestand OG

D05